Architettura, Costruzioni

Realizzazione nuova sede per la società Europam S.p.a.

Progettazione architettonica ed esecutiva, direzione lavori, coordinamento della sicurezza in fase di progettazione ed esecuzione.

La società Europam S.p.a., che è in costante crescita aziendale nel settore petrolifero e ha sede in via Sardorella 45 T r, al centro del polmone industriale di Genova Bolzaneto, ha deciso di realizzare una nuova sede adiacente alla quella primaria, utilizzando l’edifico industriale esistente ultimato al rustico.

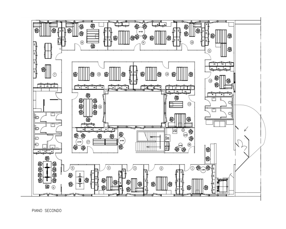
Così facendo si è concretizzata la volontà dell’azi- enda di accentrare tutte le attività annesse ad essa realizzando un unico polo direzionale. L’edificio in argomento è composto di due piani al di sopra del piano terreno ed ad una quota dal piano di campagna di 7 m, ed ha una superficie complessiva di 1200 mq. Il tutto è completato da una autorimessa al piano interrato di 900 mq, posti auto sulla copertura a terrazzo di 600 mq, a cui si accede da una rampa che ha origine dalla strada privata della società.

Giunti al parcheggio sul lastrico solare troviamo l’ingresso principale agli uffici, dove avvicinandoci allo spiccato del prospetto est, un accogliente bussola a forma di tronco di piramide e composta da specchiature in cristallo, invita ad entrare tramite una rampa semicircolare per eliminare le barriere architettoniche. I due piani di circa 600 mq presentano un grande cavedio interno su cui affacciano continue specchiature finestra- te e che prendono luce diffusa tramite dei cupolini trasparenti, in parte fissi e in parte apribili, e dotati di sensori di chiusura in caso di pioggia o forte vento.

Sulle testate contrapposte dei lati corti della pianta rettangolare, est- ovest, sono state destinate alcune aree ad ambienti di servizio (reception, servizi igiene, punti ristoro e salottini). A collegamento tra i due piani, oltre all’ascensore abbiamo una scala interna in posizione centrale che è valorizzata da parapetti in cristallo ed una intonata opera d’arte che riproduce il primo impianto realizzato dalla società Euro- pam S.p.A. Inoltre, al piano primo degli uffici si è provveduto a realizzare un collegamento tra le due sedi realizzan- do una passerella in acciaio con chiusure laterali in cristallo, e completa di tutta l’impiantistica necessaria.

Oltre alla luce dell’ambiente diffusa dal cavedio, si hanno finestre continue su tutto il perimetro dei due piani creando così un ambiente di lavoro dotato il più possibile di luce naturale. Si è proceduto inoltre alla progettazione e realizzazio- ne di particolari tipologie di illuminazione mirate a rendere il più possibile confortevole e puntuale il loro utilizzo: ci si è affidati all’esperienza pluridecennale del marchio italiano Flos, mentre si è privilegiata l’azienda tedesca Occhio per gli uffici direzionali, in quanto è in grado di coniugare un design moderno con una straordinaria qualità dei prodotti.

Superata la bussola abbiamo la reception composta in parte con pareti e banco di accoglienza in krion, e l’ascenso- re. La peculiarità di detto materiale che è, oltre ad avere una sensazione gradevole al tatto, se retroilluminato fa trasparire l’insegna “Europam” ed logo aziendale che si scorge sia sull’ingresso che dal corridoio retrostante. L’impiantistica installata (impianti elettrici, rete dati e climatizzazione) ha un tracciato in parte a pavimento e in parte a soffitto.

Questi sono stati occultati, ma sempre accessibili, utilizzando un pavimento del tipo “galleggiante” con finitura a mezzo di piastrella della Porcelanosa Ceilan Marfill 60×60 cm. Per quanto concerne i controsoffitti sono stati utilizzati in parte pannellature a doghe in legno traforato prodotti da CBI Europe, normalmente riquadra- ti al centro dell’ambiente, con funzione estetica e insonorizzante, e cartongesso. La singolarità per le porzione piane di quest’ultimo è quella di aver progettato delle nicchie che per la loro conformazione occultano le prese d’aria dell’impianto di climatizzazione e le luci strip led. In particolare queste canalette sono state realizzate per percorrere interamente l’anello del corridoio, mentre negli uffici sono poste in corrispondenza dei pannelli in legno.

Le pareti mobili in vetro trasparente e satinato (quest’ultimo solo per le sale riunioni e gli uffici direzionali) sono un prodotto Castelli, e permettono una perfetta iterazione tra spazi collettivi e riservati, mostrando la bellezza degli uffici vissuti dai dipendenti, e degli arredi in legno chiaro dell’azienda Bralco.

Cliente:

Europam S.p.a.

Ubicazione:

Via Sardorella 45 T r, Bolzaneto – 16162, Genova

Area Intervento:

1200 mq. di uffici, 600 mq. di terrazzo, 900 mq. di autorimessa

Anno:

2018

CONDIVIDI