










Il terreno è ubicato sul colline di Koh Samui ed ha una vista panoramica spettacolare sul mare.
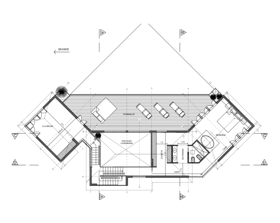
Il progetto deve tener conto delle richieste de committente affinché si provveda ad una progettazione con al piano terra tre blocchi in muratura con due camere, bagno e salotto con cucina.
La zona esterna con arredo si affaccerà sulla piscina. Al primo piano si prevederà un grosso blocco centrale con una camera e bagno. La superficie complessiva prevista è di mq. 250,00.
Cliente:
Privato
Ubicazione:
KOH SAMUI Thailandia
Area Intervento:
Superficie complessiva di mq. 250,00.
Anno:
2009